Portafolio

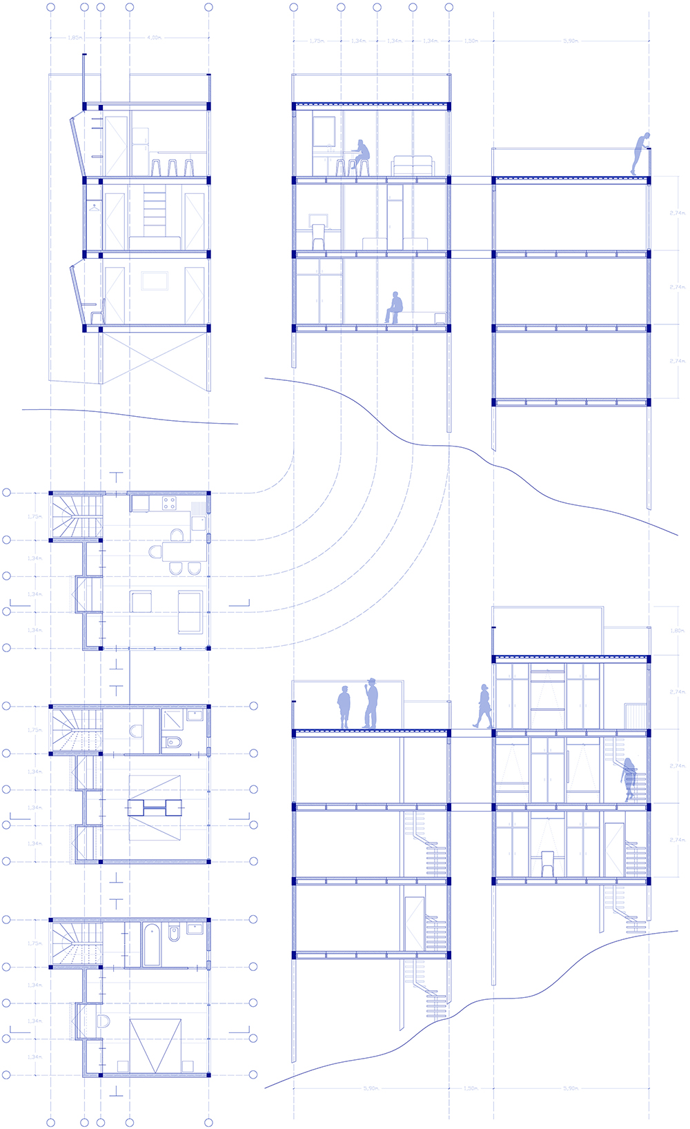
PALAFITO SIP


Plantas y Secciones

Taller de Formación V

Profesores Sebastián Gray y Francisco Vergara

Se realiza un levantamiento de la condición topográfica de Coquimbo, especialmente las escaleras de la Calle Las Heras. En torno a estas se propone la construcción de un conjunto habitacional de mayor densidad que mantiene el formato “casa” del barrio y las medidas promedio de las viviendas del sector. Para efectos sustentables y sostenibles, las viviendas se levantan del suelo, dejando lugar a la vegetación, sobre marcos rígidos prefabricados en acero que se cubren en paneles SIP y una trama de madera que permite la aparición de una cámara ventilda para contrarrestar la radiación solar.

PARQUE HONDO


Planta del Parque

Taller de Ejercitación I

Profesor José Mayoral

Ante la creciente popularidad de la iniciativa de los Cerros Isla, se vuelca la mirada a otras particularidades geográficas de la ciudad. La cualidad pedregosa del Valle Central lo convirtió en un lugar propicio para la extracción de áridos por lo que se excavaron enormes pozos que se vieron envueltos por la creciente ciudad. Uno de estos, ubicado en la Villa Juan Pablo II, La Florida, está siendo rellenado para vender los terrenos al desarrollo inmobiliario. En reacción, se propone diseñar el relleno para instalar un parque que sirve a la comunidad circundante y a la contención de las aguas que se desbordan cada cierto tiempo del canal que riega los terrenos del Campus Sur (Antumapu) de la Universidad de Chile.

CAPILLA RURAL


Isométrica Explotada

Taller de Ejercitación II

Profesores José Domingo Peñafiel y José Ignacio Valdivieso

Para la recuperación de un galpón de madera en el Fundo lechero Los Negros, entre Osorno y Puyehue, se proponen una capilla y un espacio multiuso. La población, dispersa y estadísticamente católica, carece de espacios para la colectividad; estos nuevos programas aportarían a la comunidad un espacio para compartir y un lugar para practicar su fe, ya que la capilla más cercana se encuentra a 12 kilómetros. El levantamiento del esqueleto del galpón, permitió entender el comportamiento estructural de este y luego proponer sobre este una nueva estructura, que al mismo tiempo que rigidizaba la estructura original, se levantaba del suelo para contener la capilla en la nave central del galpón y despejaba el primer piso para eventos de mayor convocatoria.

HITOS EN LA PAMPA


Collage Digital

Taller de Especialidad MARQ

Profesores Patricio Mardones y Alejandro Beals + Diego Arraigada

Buscando una forma de habitar la Pampa Argentina, se da cuenta de que esta no es tan plana como se piensa. El Dique de las Piedras, 500 kilómetros al surponiente de Buenos Aires pone en evidencia esta escasa pero existente geografía. Es por esto que se propone una serie de pabellones que vendrían a quebrar la monotonía de la pampa. El diseño de cada pabellón hace las veces de mirador y corresponde con una actividad específica, seleccionada en base a los deportes más populares entre la población argentina y actividades pertinentes a desarrollarse en torno a masas de agua.

CASA EN LA NIEBLA


Planta de la Propuesta

Taller de Especialidad MARQ

Profesores Patricio Mardones y Alejandro Beals + Go Hasegawa

Se realiza un levantamiento de la condición topográfica de Coquimbo, especialmente las escaleras de la Calle Las Heras. En torno a estas se propone la construcción de un conjunto habitacional de mayor densidad que mantiene el formato “casa” del barrio y las medidas promedio de las viviendas del sector. Para efectos sustentables y sostenibles, las viviendas se levantan del suelo, dejando lugar a la vegetación, sobre marcos rígidos prefabricados en acero que se cubren en paneles SIP y una trama de madera que permite la aparición de una cámara ventilda para contrarrestar la radiación solar.

PDF